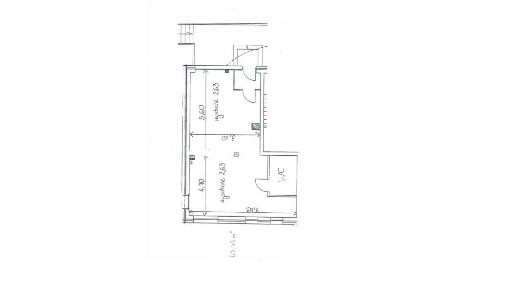
Do wynajęcia lokal handlowo/ usługowo/ biurowy o pow. 65,45m na wyższym parterze z witryną w bardzo dobrym punkcie Ursusa.
Składa się z sali sprzedażowej + wc.
Lokal usługowy jest po generalnym remoncie- nowy gres, odnowione ściany, wymiana oświetlenia na energooszczędne, nowa łazienka wybudowana od zera.. Idealnie sprawdzi się pod placówkę bankową/ sklep/ salon kosmetyczny/ przychodnię/ biuro/ studio fitness/ sklep( zgoda na alkohol).
Cena najmu 90zł/m2 + 23% VAT
Dodatkowo opłaty administracyjne + opłaty administracyjne (1100zł brutto) + opłaty licznikowe wg. zużycia (prąd).
Minimalny okres najmu 1 rok,
Kaucja dwumiesięczny czynsz.
A 65.45 sq m retail/service/office space is available for rent on the upper ground floor with a display window in a prime location in Ursus.
It comprises a sales room and a restroom.
The retail space has undergone a complete renovation - new stoneware tiles, renovated walls, energy-efficient lighting, and a new bathroom built from scratch. It would be ideal for a bank branch, shop, beauty salon, clinic, office, or fitness studio/shop (alcohol permitted).
Lease price: PLN 100/sq m + 23% VAT
Additional administrative fees + metering fees based on consumption (electricity). (Total utility bills: approximately PLN 1,300 gross)
Minimum lease term: 1 year, security deposit: two months' rent.
Пропонується в оренду торговельно-сервісне/офісне приміщення площею 65,45 кв. м на верхньому першому поверсі з вітриною у престижному районі Урсуса.
Воно складається з торгового залу та туалету.
Торговельне приміщення пройшло повну реконструкцію - нова керамічна плитка, відремонтовані стіни, енергоефективне освітлення та нова ванна кімната, побудована з нуля. Воно ідеально підійде для відділення банку, магазину, салону краси, клініки, офісу або фітнес-студії.
Вартість оренди: 100 злотих/кв. м + 23% ПДВ
Додаткові адміністративні збори + плата за облік електроенергії залежно від споживання. (Загальна сума комунальних платежів: приблизно 1300 злотих брутто)
Мінімальний термін оренди: 1 рік, застава: орендна плата за два місяці.
5 891,00 PLN (90,00 PLN)
Lokal 65m w Ursusie, na placówkę bankową lub inną
Lokal handlowy/usługowy na wynajem,
Warszawa
Dane szczegółowe
- Typ transakcji: wynajem
- Typ nieruchomości: Komercyjny
- Lokalizacja: Warszawa Ursus
- Powierzchnia:65,45 m2
- Liczba pokoi: 2
- Rok budowy: 1994
- Piętro: 0 z 4
- Numer oferty: A-D559653
- Cena: 5 891,00 PLN
- Cena za m2: 90,00 PLN
Kontakt z agentem: Art Dom
Maria Senator - Twardowska
Opis nieruchomości
Mapa
Kontakt z agentem
Art Dom